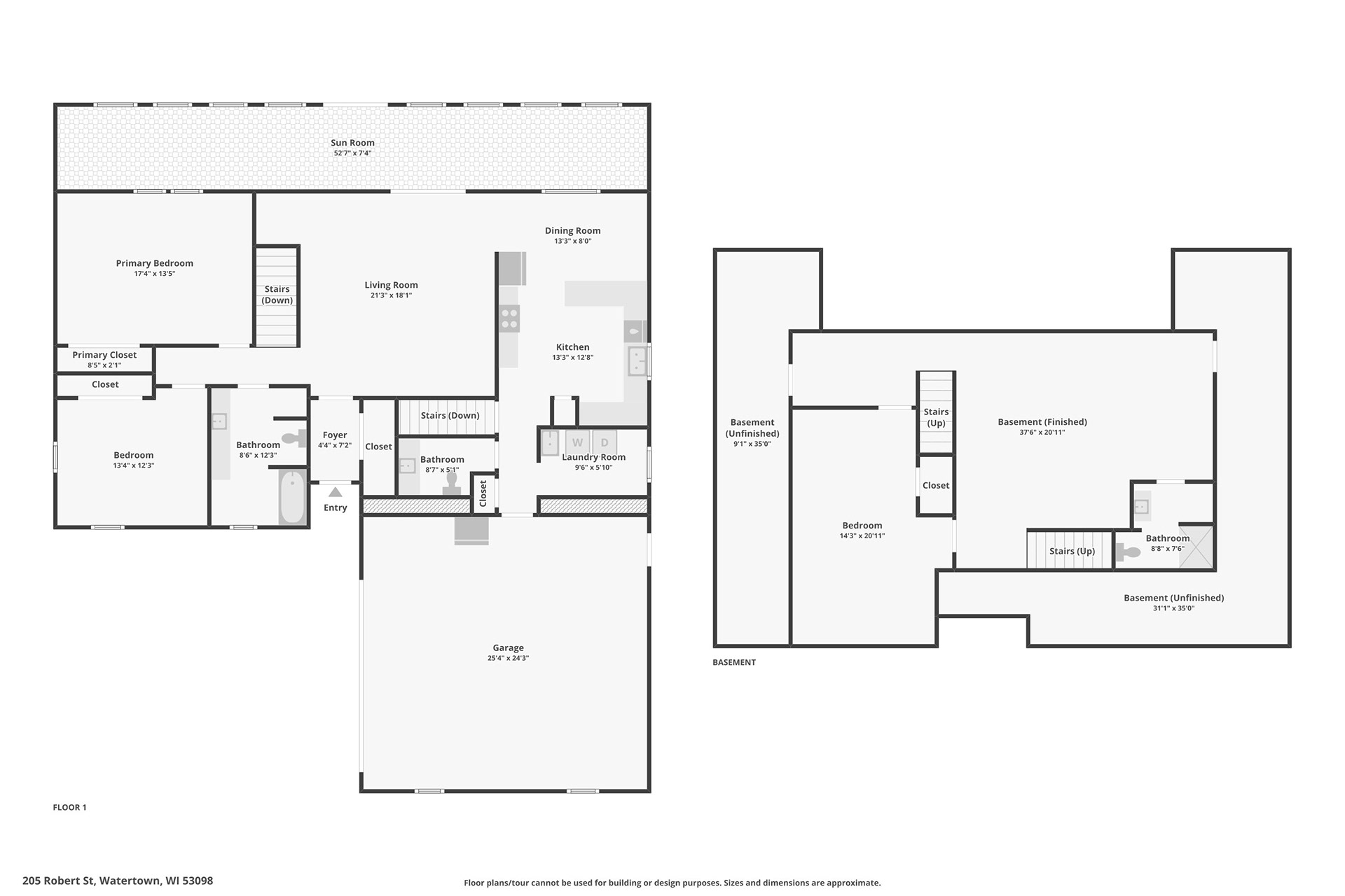
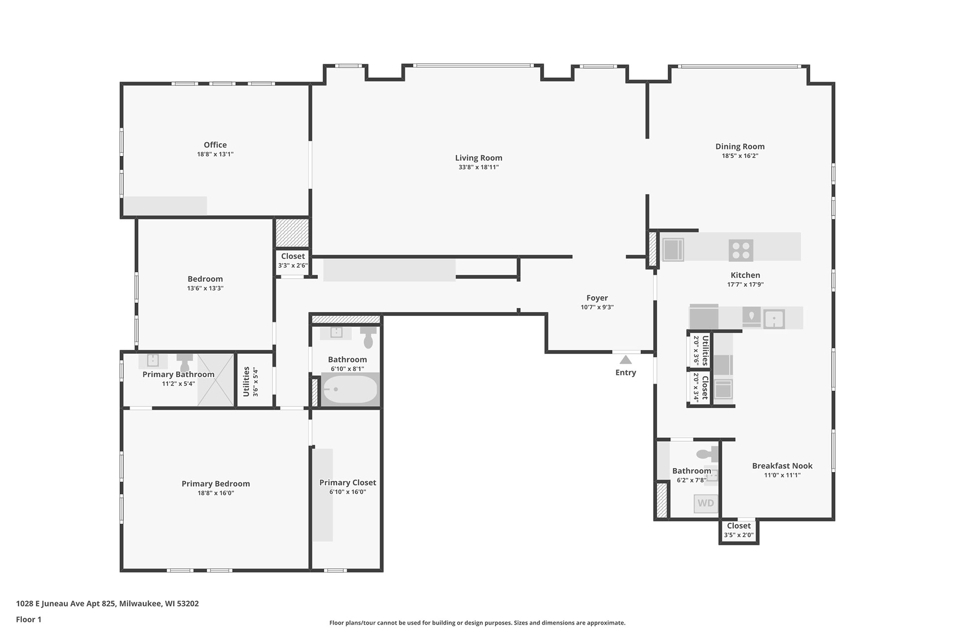
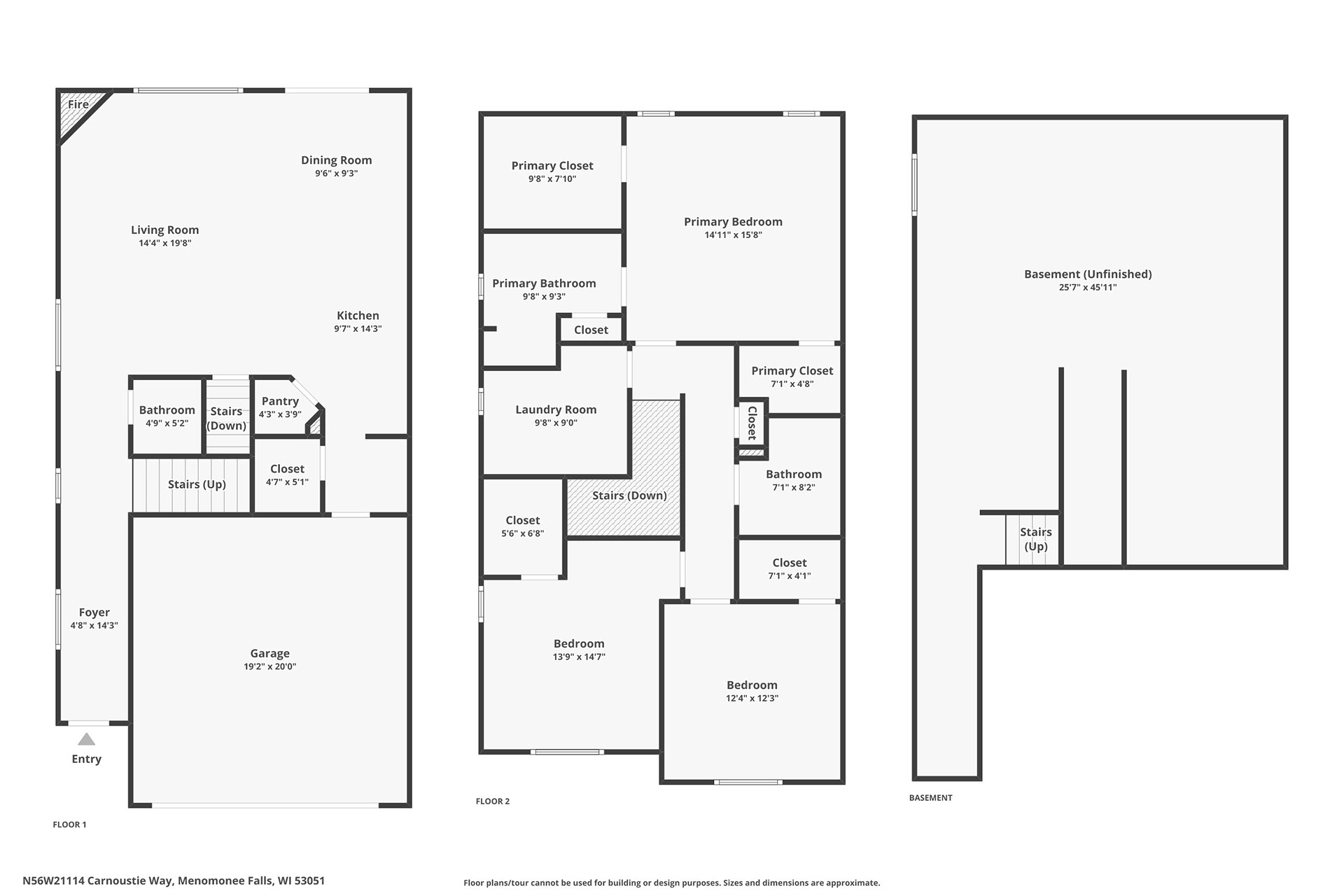
Floor Plans are the perfect add-on to dress up your listings to show your professionalism as part of your personal brand.
We use cookies to enhance your browsing experience and analyze site traffic. By continuing to use our site, you agree to our use of cookies. For more information, please see our Privacy Policy. Accept Decline